水域滩涂养殖证公示
当前浏览器版本过低,建议升级到Internet Explorer 9及以上版本或者安装Chrome内核浏览器获得最佳浏览体验。查看详情
更换或升级浏览器以获得最佳体验。
当前浏览器版本过低,可能会有安全风险且无法正常显示。建议您升级或使用其他浏览器。
若您当前使用的浏览器为QQ浏览器或者360浏览器仍出现该提示,请切换至极速模式。
您当前的位置:首页 >公示公告
水域滩涂养殖证公示
水域滩涂养殖证公示
根据《水域滩涂养殖发证登记办法》(中华人民共和国农业部令2010年第9号)规定,经城口县岔河三文鱼养殖场申请,城口县农业农村委现场核实,拟对该养殖场《水域滩涂养殖证》有效期延展。如有疑议,可在公示期来电反映情况。现将养殖证的基本情况公示如下:
单位名称:城口县岔河三文鱼养殖场。
养殖方式:池塘。
水域滩涂土地性质:集体。
面积:0.8392公顷。
拟核准养殖权期限:2025年10月23日至2027年12月31日
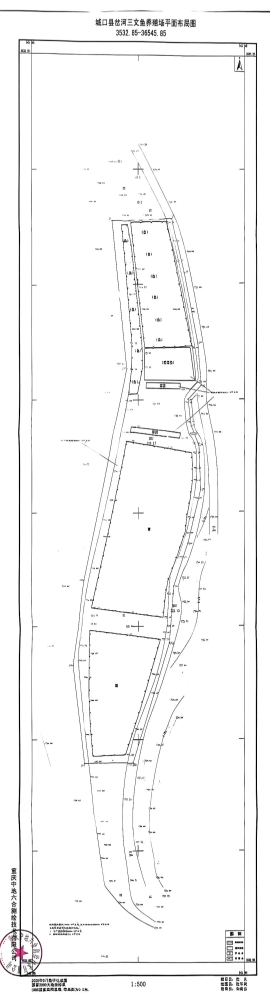
位置:城口县庙坝镇关内村7组,具体见附图。
公示时间:2025年10月27日至11月3日。
联系电话:023-59227471。
附图:勘测定界图。
城口县农业农村委员会
2025年10月27日

国务院部门网站
地方政府网站
市政府部门网站
城口县人民政府版权所有© 主办:城口县人民政府办公室
通讯地址: 重庆市城口县葛城街道土城路北门口1号
联系电话:12345(便民服务热线一号通) 023-59212345(网站技术维护)
网站标识码 5002290001 ICP备案号:渝ICP备05001204号
渝公网安备 50022902500243号
